Großzügige, helle Büroräumlichkeiten mit optimaler Verkehrsanbindung in Übersee
Details
Ort ÜberseeObjektart Bürofläche
Gesamtfläche 110 m2
Bürofläche 110 m2
Netto Kaltmiete 1.150 €
Nebenkosten 240 €
Provision 2 Monatsmieten zzgl. 19% MwSt.
Zimmer 3
Garage/Stellplatz Stellplatz Miete 50,00 €
Stellplätze 2
Objektbeschreibung
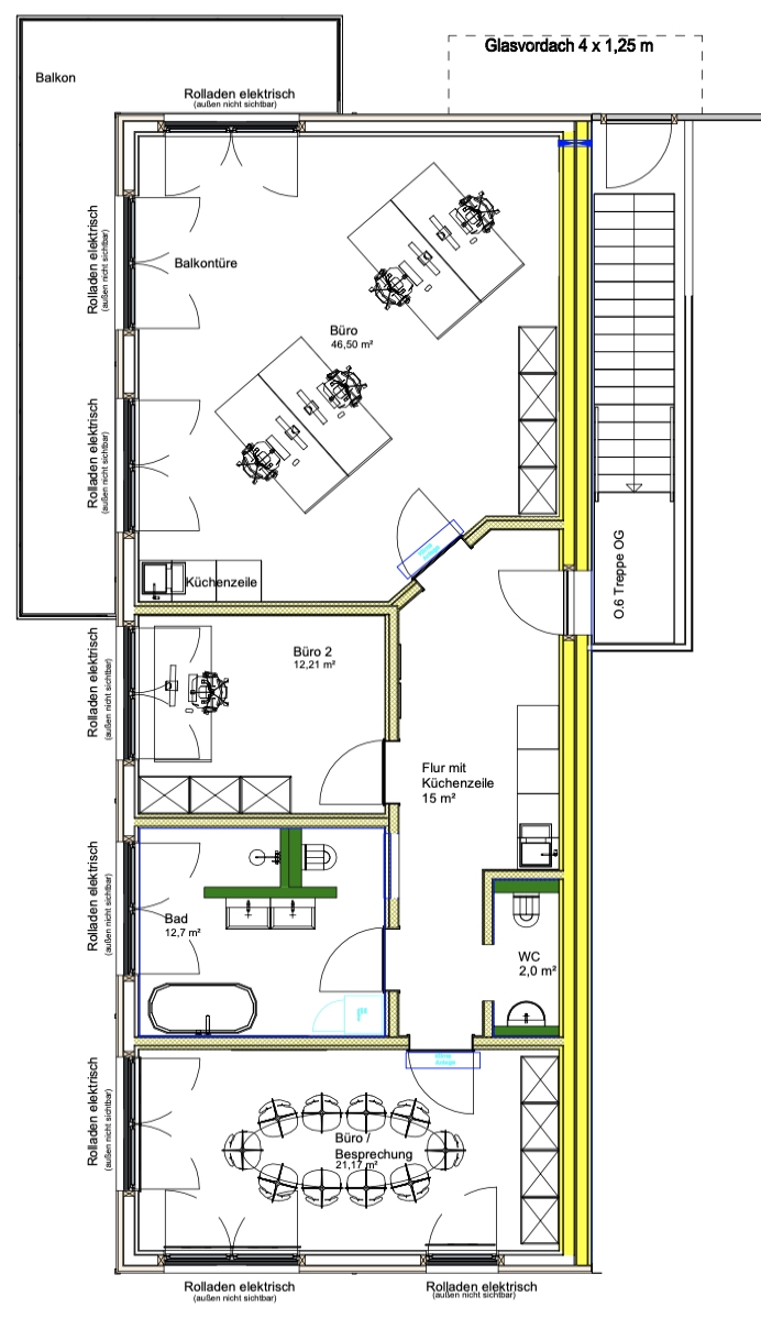
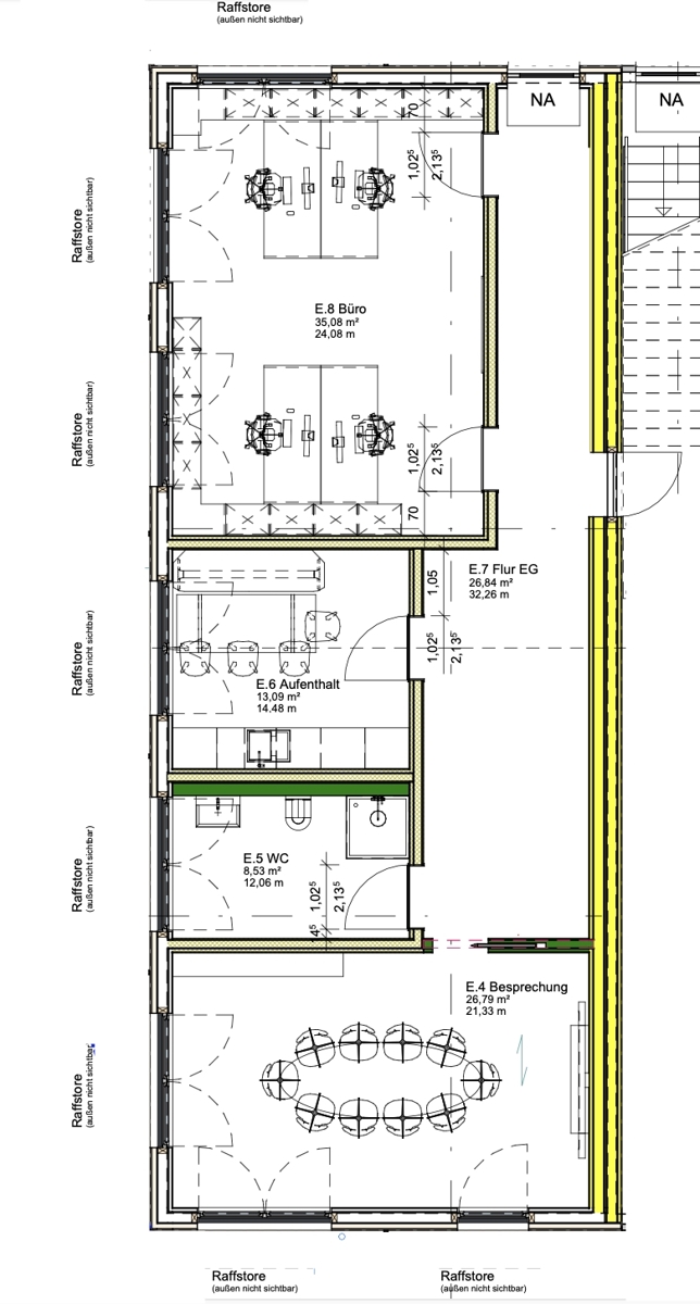
Die zur Vermietung angebotene Büroeinheit befindet sich im Obergeschoss eines derzeit entstehenden Neubaus in Übersee und umfasst eine Fläche von ca. 110 m². Die seitlich im Gebäude geplanten Räumlichkeiten erhalten großzügige Fensterflächen, die für eine helle Arbeitsumgebung sorgen. Raffstores ermöglichen bei Bedarf eine flexible Verschattung.Die Einheit überzeugt mit einer durchdachten Raumaufteilung, die ideale Bedingungen für unterschiedliche Nutzungskonzepte schafft. Es entsteht ein weitläufiger Arbeitsbereich mit Balkonzugang, ein Besprechungsraum sowie ein weiterer Büroraum. Das Büro wird komplettiert durch ein ein WC, ein Badezimmer sowie einen einladenden Flurbereich mit vorgerüsteten Anschlüssen für eine Küchenzeile. Damit bietet die Büroeinheit funktional gestaltete Räumlichkeiten, die sowohl für interne Arbeitsprozesse als auch für den Kundenempfang bestens geeignet sind.
Fertigstellung ist voraussichtlich der 15.06.2026.
Ausstattung
- Moderner Fußbodenbelag (Vinylboden Eiche)- Klimageräte zur Kühlung
- Elektrische Außenrollos
- Kontrollierte Wohnraumlüftung mit Pollenfilter
- Sanitärbereich mit WC
- Badezimmer mit WC
- Glasfaseranschluss
- 2 Außenstellplätze direkt am Gebäude
- Fußbodenheizung
- Luft-Wasser-Wärmepumpe
Lage
Übersee ist eine dynamisch wachsende Gemeinde im oberbayerischen Landkreis Traunstein und verbindet landschaftliche Attraktivität mit wirtschaftlichem Potenzial. Mit rund 5.000 Einwohnern und einer Fläche von 30,5 km² zählt Übersee zu den größten Gemeinden im Chiemgau.Die Gemeinde liegt ideal zwischen dem Südufer des Chiemsees und den Chiemgauer Bergen und profitiert von einer hervorragenden Infrastruktur:
- Direkter Anschluss an die Autobahn A8 (München–Salzburg)
- Eigener Bahnhof an der Strecke München–Rosenheim–Salzburg mit IC-Halt
- Nur 4 km zur Anschlussstelle Übersee und 3 km zur Anschlussstelle Grabenstätt
Die verkehrsgünstige Lage macht Übersee zu einem attraktiven Standort für Unternehmen und Dienstleister und bietet ideale Voraussetzungen für moderne Arbeitsplätze sowie eine gute Erreichbarkeit für Mitarbeiter und Kunden.
Sonstige Angaben
Die angegebene Kaltmiete sowie die Nebenkosten verstehen sich jeweils netto, zuzüglich der gesetzlichen Mehrwertsteuer in Höhe von 19 %.Energieausweis
Baujahr 2024Zustand Teil_vollsaniert
Energieausweisart Bedarf
Energieausweis gültig bis 14.02.2034
Endenergiebedarf 20.40 kWh/(m2*a)
Energieeffizienzklasse A+
Baujahr laut Energieausweis 2024
Ihr Ansprechpartner
Laura Fischer-Schmid
Tel.: +49 8031 235292
l.fischer@a8-immobiliengruppe.de
JETZT KONTAKT AUFNEHMEN
Alle Angaben nach Auskunft des Eigentümers.© 2017 - 2026 A8 Immobiliengruppe OHG











