Lichtdurchflutete Gewerbefläche mit flexibler Raumgestaltung und bester Verkehrsanbindung
Details
Ort ÜberseeObjektart Bürofläche
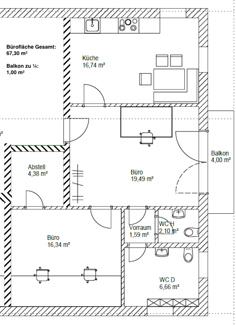
Gesamtfläche 68 m2
Bürofläche 68 m2
Kaltmiete 850 €
Nebenkosten 200 €
Gesamtmiete 1.050 €
Provision 2 Monatsmieten zzgl. 19% MwSt.
Objektbeschreibung
Moderne und flexibel gestaltbare Gewerbefläche in attraktiver LageIn einer neu errichteten Gewerbeimmobilie in hervorragend erreichbarer Lage in Übersee stehen vielseitig nutzbare Mietflächen zur Verfügung – ideal für eine moderne Praxis, ein Büro oder andere Dienstleistungsunternehmen. Diese Einheit mit ca. 68 m² im Dachgeschoss überzeugt durch eine flexible Raumaufteilung, die sich individuell an Ihre Anforderungen anpassen lässt. Ob Behandlungs- oder Büroräume, ein einladender Empfangsbereich oder separate Beratungsräume – hier entstehen Räume mit einer Atmosphäre von Professionalität und Wohlbefinden.
Ihre Vorteile auf einen Blick:
- Individuelle Gestaltungsmöglichkeiten: Die Raumaufteilung lässt sich flexibel gestalten und ermöglicht optimale Abläufe für unterschiedliche Nutzungen.
- Lichtdurchflutete Räume mit Wohlfühlcharakter: Große Fensterfronten schaffen eine helle, freundliche Umgebung.
- Komfortabler Zugang und hervorragende Erreichbarkeit: Die Flächen sind über einen Personenaufzug zugänglich und bieten ausreichend Stellplätze für Kunden, Patienten oder Mitarbeiter.
- Hochwertige Ausstattung und nachhaltige Bauweise: 3-fach verglaste Kunststofffenster, eine Wärmepumpe mit Photovoltaikanlage und moderne Dämmung gewährleisten eine energieeffiziente Nutzung und niedrige Betriebskosten.
- Zusätzlicher Komfort: Ein großzügiger Balkon verbindet Innen- und Außenbereich harmonisch, während ein separater Abstellraum im Keller zusätzlichen Stauraum bietet.
Diese Räumlichkeiten bieten beste Voraussetzungen für Unternehmen, die eine repräsentative, moderne und flexibel gestaltbare Gewerbefläche suchen. Gerne präsentieren wir Ihnen bei Bedarf weitere Einheiten, die sich individuell an Ihre Anforderungen anpassen lassen.
Ausstattung
- Glasfaseranschluss für maximale Internetgeschwindigkeit- Hochwertige Kunststofffenster mit 3-fach-Verglasung
- Energieeffiziente Wärmepumpe mit Photovoltaikanlage
- Frei wählbare Bodenbeläge für ein individuelles Designkonzept
- Raffstores an fast allen Fenstern für optimalen Licht- und Wärmeschutz
- Großzügiger Balkon als zusätzlicher Arbeits- oder Pausenbereich
- Separater Abstellraum im Keller für zusätzlichen Stauraum
- Personenaufzug für barrierefreien Zugang
- PKW-Stellplätze direkt am Objekt
Die Anmietung von Außen-Stellplätzen à 60 € je Stellplatz ist optional.
Lage
Übersee, eine aufstrebende Gemeinde im oberbayerischen Landkreis Traunstein, bietet eine einzigartige Kombination aus landschaftlicher Schönheit und wirtschaftlichem Potenzial. Mit rund 5.000 Einwohnern und einer Fläche von 30,5 km² zählt Übersee zu den größten Gemeinden des Chiemgaus.Strategische Lage und Verkehrsanbindung
Die Gemeinde profitiert von ihrer hervorragenden Lage zwischen dem Südufer des Chiemsees und den Chiemgauer Bergen. Die Verkehrsanbindung ist erstklassig:
Direkter Anschluss an die Autobahn A8 (München-Salzburg)
Eigener Bahnhof an der Strecke München-Rosenheim-Salzburg mit IC-Halt
Nur 4 km zur Anschlussstelle Übersee und 3 km zur Anschlussstelle Grabenstätt der A8
Sonstige Angaben
Eckdaten:Gesamtfläche: 330 m²
Lage: 1. Obergeschoss und Dachgeschoss
Flexible Aufteilung: Gesamtanmietung oder Teilung in bis zu vier separate Einheiten möglich
Aufteilung in bis zu vier separate Einheiten:
Einheit 1: ca. 72 m² / 895,00 € KM / 215,00 € NK
Einheit 2: ca. 82 m² / 995,00 € KM / 250,00 € NK
Einheit 3: ca. 68 m² / 850,00 € KM / 200,00 € NK
Einheit 4: ca. 108 m² / 1.250,00 € KM / 325,00 € NK
Energieausweis
Baujahr 2024Zustand Erstbezug
Energieausweisart Bedarf
Energieausweis gültig bis 09.02.2034
Endenergiebedarf 50.10 kWh/(m2*a)
Energieeffizienzklasse B
Baujahr laut Energieausweis 2024
Ihr Ansprechpartner
Brigitte Eisenreich
Tel.: +49 8031 235292
b.eisenreich@a8-immobiliengruppe.de
JETZT KONTAKT AUFNEHMEN
Alle Angaben nach Auskunft des Eigentümers.© 2017 - 2026 A8 Immobiliengruppe OHG















