Stilvoller Wohnkomfort auf höchstem Niveau über den Dächern Rosenheims
Details
Ort RosenheimObjektart Etage
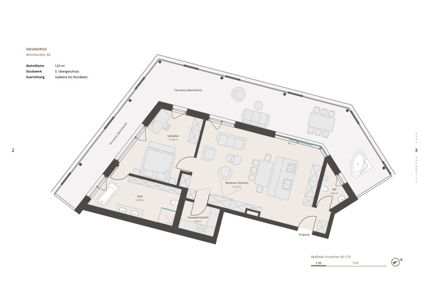
Wohnfläche ca. 120 m2
Kaufpreis 990.000 €
Zimmer 2
Badezimmer 1
Schlafzimmer 1
Stellplätze 2
Objektbeschreibung
Sofort einziehen und wohlfühlen: Diese exklusive 2-Zimmer-Wohnung vereint stilvolles Neubauambiente mit sofortiger Verfügbarkeit – ein seltenes Zusammenspiel. In zentraler Lage Rosenheims. Die angebotene Wohnung befindet sich in der fünften Etage des Gebäudes und zählt zu den Top-Premium Einheiten sowie zu den letzten drei noch verfügbaren Einheiten in diesem besonderen Neubauprojekt. Durch ein perfektes Zusammenspiel aus Qualität und Design wird diese Wohnung höchsten Ansprüchen gerecht. Das Highlight dieser Wohnung bildet die Balkonfläche mit Blick über die Stadt: im Dachterrassen-Charakter fast gänzlich überdacht verleiht diese der Wohnung den stilvollen Charakter eines Penthouses. Umlaufend ist die großzügige Fläche aus fast jedem Raum der Wohnung zugänglich und ergänzt die Wohnräume durch alle Jahreszeiten hinweg.Charakteristisch für diese moderne Wohnung ist die Terrassierung – sie schafft ein offenes Wohnambiente mit Licht und Sonne zu jeder Jahreszeit. Die Ausstattung präsentiert sich durchweg hochwertig: Modernste Elemente fügen sich zu einem stilvollen Gesamtbild. Ein besonderes Highlight bildet die großzügige Dachterrasse, die den Blick über die Stadt, in die Berge und bis in den Sternenhimmel öffnet. Das Zusammenspiel aus Glas, Weite und Ausblick verleiht dieser Wohnung ein außergewöhnliches Open-Air-Gefühl.
Für diese Immobilie besteht derzeit eine exklusive Sonderkondition: Im Kaufpreis ist ein Gutschein für eine hochwertige Werkhaus-Einbauküche im Wert von 50.000 € bereits enthalten.
Ausstattung
- modernes Energieeffizienzhaus (Standard 55)- sehr hohe Qualität der verwendeten Materialen
- raumweise regelbare Fußbodenheizungen und Klimageräte
- mehrschichtiges Echtholzparkett in den Wohnräumen
- Feinsteinzeugfliesen im Sanitärbereich
- hochwertige Keramiken und Armaturen (ausschließlich deutsche u. italienische Markenhersteller)
- LED Einbauspots (dimmbar) in allen Bädern
- Vollflächige Badspiegel mit indirekter LED Beleuchtung (dimmbar)
- LED Lichtschiene (dimmbar) an allen Glasfassaden für indirekte Beleuchtung und Sichtschutz
- Begehbare Dusche mit beleuchteter Ablagenische
- Terrasse mit drei in die Decke integrierte Infrarotheizstrahler
Zu dieser Wohnung können bis zu zwei Tiefgaragenstellplätze erworben werden (Kosten 35.000 EUR pro Stellplatz).
Lage
Kaum eine andere bayerische Stadt verbindet südliches Flair, alpenländisches Ambiente und urbane Qualität so charmant wie Rosenheim. Mit ca. 65.000 Einwohnern ist Rosenheim die größte Stadt im südostoberbayerischen Raum.Die Stadt ist ein wichtiger Verkehrsknotenpunkt zwischen München, Salzburg und Innsbruck sowie dem Brennerpass nach Italien. Durch die Eisenbahnstrecken München-Salzburg und München-Verona/Italien sowie die österreichische Eisenbahn-Transitstrecke Salzburg-Innsbruck ist Rosenheim hervorragend an den öffentlichen Verkehr angebunden. Flughäfen in München, Salzburg und Innsbruck sind mit dem Pkw in 1-1,5 Stunden erreichbar.
Rosenheim bietet ein reichhaltiges Angebot an Kultur, Unterhaltung und Freizeitmöglichkeiten. Dank der zentralen Lage des ROXY sind alle Einrichtungen des täglichen Bedarfs in wenigen Minuten zu Fuß zu erreichen. Durch die Nähe zum Bahnhof und die geringe Distanz zum traditionellen Max-Josefs-Platz lässt sich die hohe Qualität der Innenstadt genießen. Wer sich für Rosenheim als Wohnort entscheidet, möchte die Vorteile einer modernen Stadt nutzen, ohne dabei auf ein vielseitiges Angebot an Naherholung und aktiver Freizeitgestaltung in einer landschaftlich einmaligen Kulisse zu verzichten.
Sonstige Angaben
Der Verkauf erfolgt für den Käufer provisionsfrei.Energieausweis
Baujahr 2022Zustand Erstbezug
Energieausweisart Bedarf
Energieausweis gültig bis 09.05.2031
Endenergiebedarf 57.18 kWh/(m2*a)
Heizungsart Fußboden
Primärenergieträger Fern
Energieeffizienzklasse B
Baujahr laut Energieausweis 2022
Ihr Ansprechpartner
Verena Rudolph
Tel.: +49 8031 235292
v.rudolph@a8-immobiliengruppe.de
JETZT KONTAKT AUFNEHMEN
Alle Angaben nach Auskunft des Eigentümers.© 2017 - 2026 A8 Immobiliengruppe OHG



















